DURC
Documento Unico di Regolarità Contributiva
Cos’è
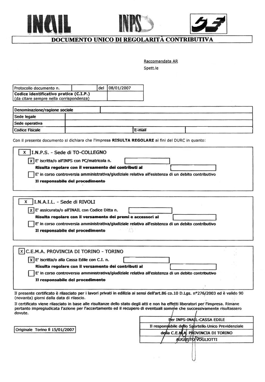
Il DURC è il certificato che, sulla base di un’unica richiesta, attesta contestualmente la regolarità di un’impresa per quanto concerne gli adempimenti INPS, INAIL e Cassa Edile verificati sulla base della rispettiva normativa di riferimento.
Le modalità di rilascio del DURC nel settore edile sono disciplinate dalla Circolare INAIL n: 38/2005 ,dalla Circolare INPS n: 92/2005 e dalla Comunicazione della Commissione Nazionale Paritetica delle Casse Edili n: 272/2005.
Vedi esempio:
Chi può richiederlo
Il richiedente principale del DURC è l’impresa, anche attraverso i consulenti del lavoro e le associazioni di categoria provvisti di delega.
Sono soggetti richiedenti anche le pubbliche amministrazioni appaltanti, gli enti privati a rilevanza pubblica appaltanti e le SOA (Società Organismi di Attestazione).
Come richiederlo
Il DURC viene richiesto per via telematica tramite lo Sportello Unico Previdenziale (modalità principale) compilando le schermate che appaiono a video.
La richiesta per via telematica può essere effettuata accedendo alternativamente a http://www.sportellounicoprevidenziale.it/ (aziende, intermediari, stazioni appaltanti ed enti a rilevanza pubblica appaltanti) oppure a http://www.inail.it/(aziende ed intermediari) o a http://www.inps.it/ (aziende ed intermediari). I moduli cartacei, reperibili presso le strutture territoriali di Casse Edili, INPS o INAIL, devono essere debitamente compilati secondo le istruzioni riportate sugli stessi.
Quando richiederlo
Al momento della partecipazione alla gara e fino all’aggiudicazione, l’impresa può dichiarare l’assolvimento degli obblighi contributivi.
La certificazione di regolarità contributiva deve essere consegnata al Proprietario o al suo Tecnico prima dell’inizio dei lavori oggetto di concessione edilizia o di DIA (denuncia inizio attività).
Chi lo rilascia
Acquisita dal sistema informatico la richiesta del DURC, viene rilasciato al richiedente il protocollo di ricezione ed assegnato il CIP (codice identificativo della pratica). La richiesta del DURC viene smistata automaticamente alle competenti unità organizzative degli Enti, al fine di effettuare le verifiche sulla regolarità. L’utente, attraverso il CIP, può verificare in qualunque momento lo stato di avanzamento della propria pratica, sia accedendo in modalità di consultazione alla procedura informatica, sia richiedendo ad una qualunque struttura territoriale degli Enti di effettuare tale controllo. Il DURC viene rilasciato dalla Cassa Edile competente per territorio in caso di richiesta per lavori edili, mentre negli altri casi viene rilasciato dalla Sede INPS o INAIL competente per territorio a seconda dell’Ente al quale è stata presentata la richiesta. Il DURC viene trasmesso al richiedente (e comunque in copia alla ditta se il richiedente è diverso da questa), utilizzando il canale postale con raccomandata A/R, all’indirizzo indicato dalla stessa in fase di richiesta. Può essere richiesta presso qualsiasi struttura territoriale di Cassa Edile, INPS o INAIL una “Ristampa” del DURC.
Tempi di rilascio
Il DURC viene rilasciato entro 30 giorni dalla data di completa acquisizione della richiesta da parte del sistema informatico. Gli Enti si riservano la facoltà di richiedere all’impresa documentazione ad integrazione dei dati già forniti, qualora sia ritenuta necessaria al fine dell’accertamento della regolarità contributiva, assegnando un termine di dieci giorni per la presentazione di quanto richiesto. Tale richiesta, utile ai fini istruttori, sospende il termine di rilascio del DURC. Qualora l’impresa non presenti la suddetta documentazione entro il termine assegnato, l’Ente che l’ha richiesta si pronuncerà sulla base delle informazioni in suo possesso.
Riferimenti normativi
- Legge n. 266/2002;
- Decreto Legislativo n. 276/2003;
- Legge n. 109/1994 e successive modifiche ed integrazioni;
- Decreto del Presidente della Repubblica n. 554/1999 e successivi;
- Decreto Legislativo n. 157/1995 e Decreto Legislativo n. 358/1992 e successive modifiche ed integrazioni;
- Decreto del Presidente della Repubblica n. 445/2000 e successivi;
- Decreto del Presidente della Repubblica n. 34/2000 e successivi;
- Decreto Legislativo n. 196/2003.
Richiedi Informazioni
- Affrancazione prezzi massimi cessione
- Assistenza Tecnica per Acquisto Casa
- Attestazione di Conformità Catastale
- Attestazione di Conformità Urbanistica
- Calcolo Superfici Catastali
- Check-up Immobiliare
- Consulenze Tecniche e Contenziosi
- Perizia prezzo massimo di locazione
- Pratiche Edilizie in Sanatoria degli Immobili